江苏五加特种门窗制造有限公司
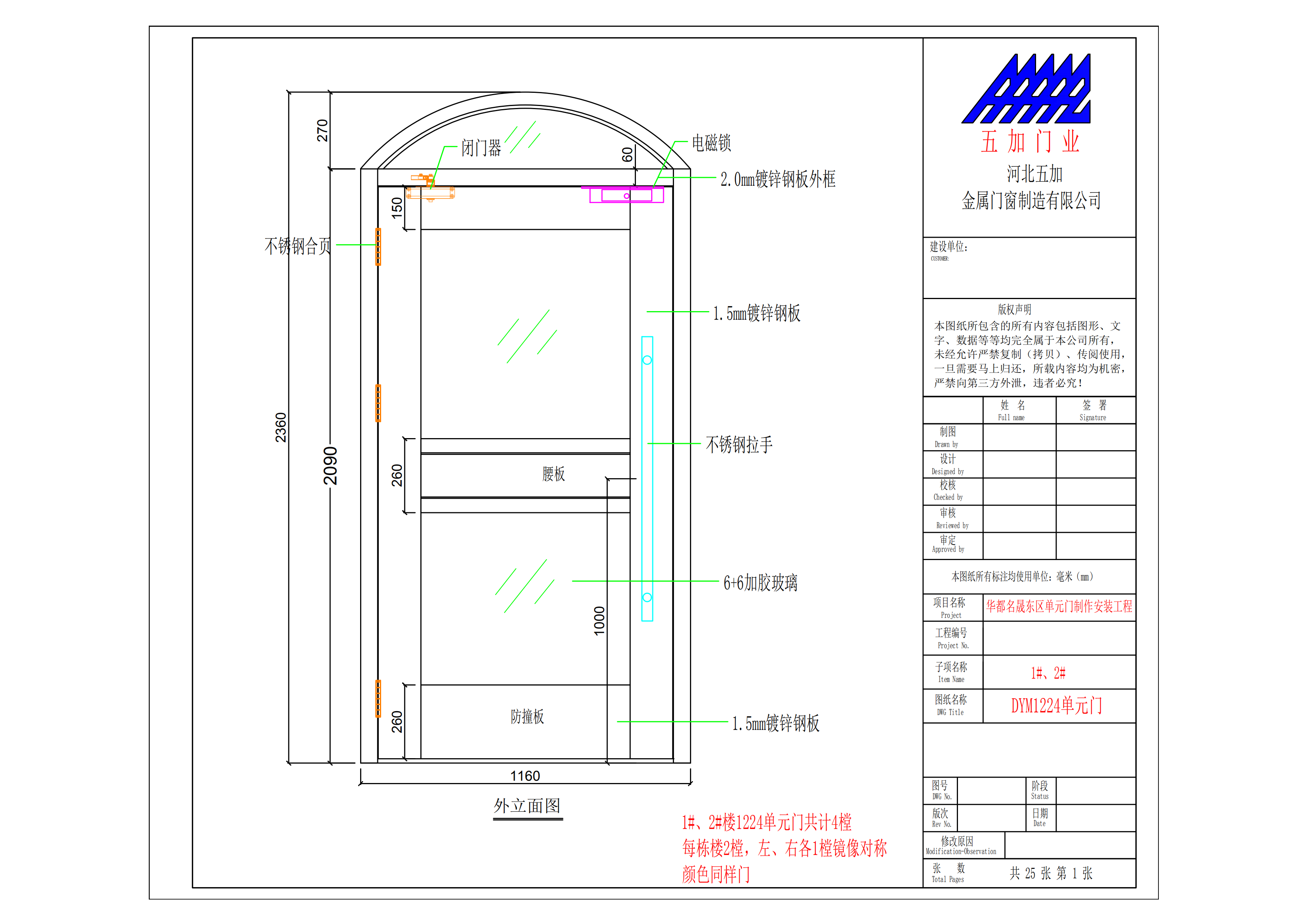
玻璃单元门图纸:
工程案例
荣誉资质
客户见证
公司形象
感谢客户长期以来的支持
车间标准
视频展示
首页
>
玻璃单元门图纸
华都名晟单元门_01
2020-04-23